Details

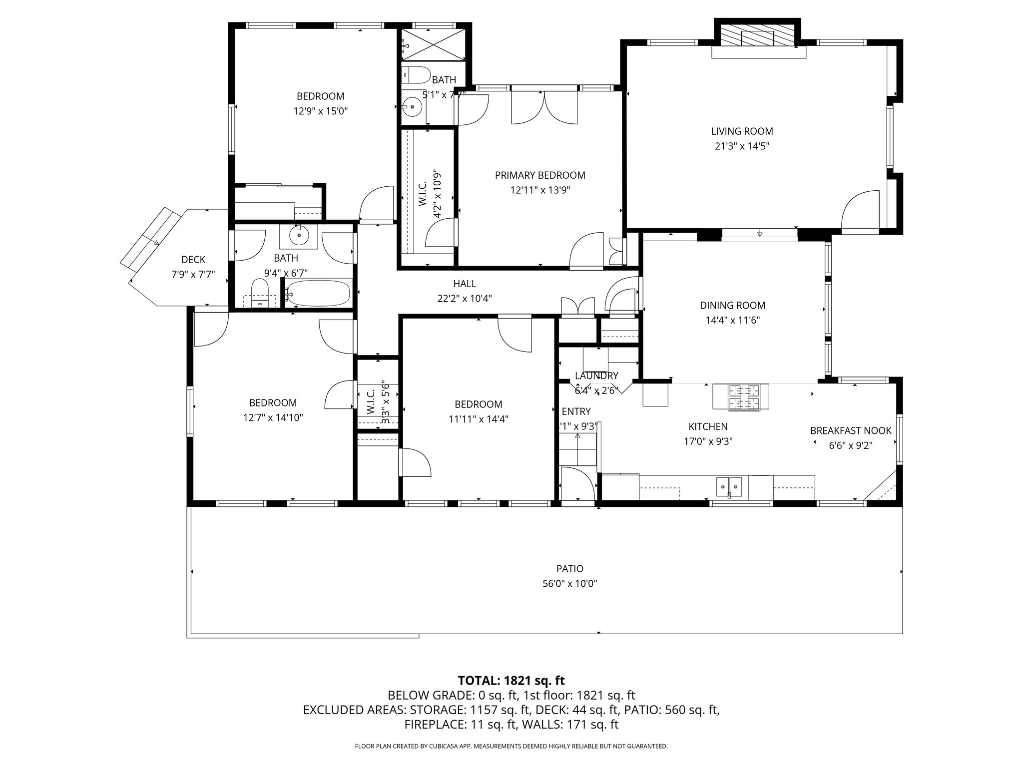
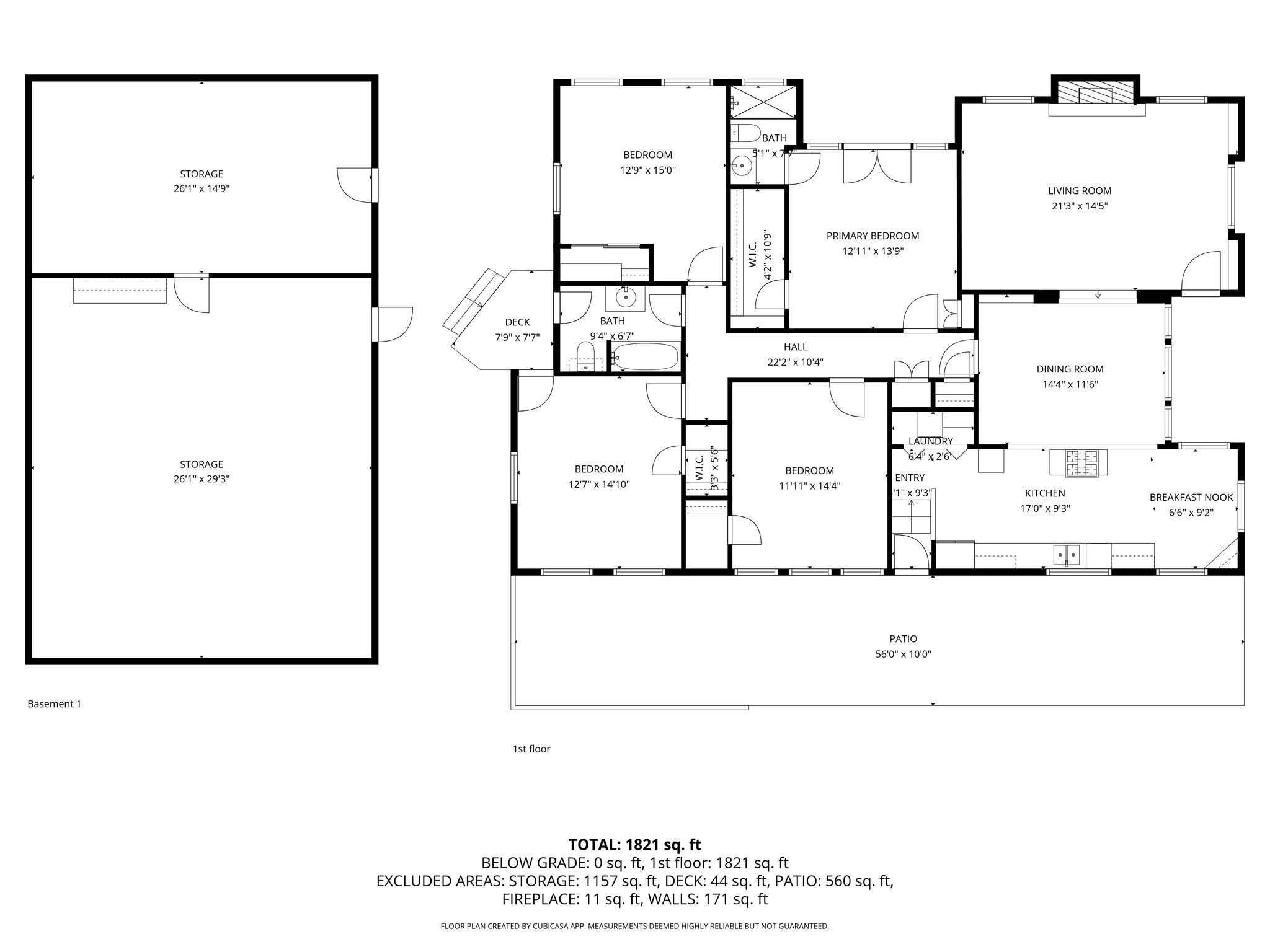
Welcome to a truly exceptional Spanish-style retreat in prime Eagle Rock. Set on an expansive lot just shy of 10,000 sq. ft. and framed by mature palms, this character-filled residence offers the ideal backdrop for quintessential California living. With 4 bedrooms, 2 bathrooms, and more than 1,800 sq. ft. of warm, inviting interior space, this home presents a rare opportunity to restore, reimagine, or rebuild to suit your vision.

Original vintage details - arched openings, period windows, and beautiful natural light throughout - highlight the timeless charm and tremendous potential within. Multiple living and dining spaces allow flexibility for a future floor plan, while generously sized bedrooms offer a strong foundation for thoughtful modernization. The kitchen and baths remain functional but are ready to be elevated to today's standards.

A standout feature is the oversized 1,157 sq. ft. garage, ideal for a workshop, creative studio, extensive storage, or a future ADU. The expansive grounds further invite endless possibilities, from curated gardens to entertaining terraces or a private compound-style retreat.

Located just steps from Eagle Rock Elementary - one of the neighborhood's most sought-after community schools known for its warm environment and strong parent involvement - this home places you at the heart of what makes Eagle Rock so beloved. Enjoy close proximity to neighborhood favorites including Milkfarm, Penny Oven, Relentless, Ikigai, Four Cafe, The Oinkster, and more, with easy access to Highland Park, Pasadena, and DTLA.

This is a rare opportunity to own a Spanish gem that combines scale, character, and unlimited potential in one of Los Angeles' most desirable enclaves. Bring your creativity and transform this residence into the ultimate expression of modern California living.

Sale includes two parcels: APNs 5685-010-002 and 5685-010-009.

  • $1,350,000
  • 4 Bedrooms
  • 2 Bathrooms
  • 1,821 Sq/ft
  • Lot 0.23 Acres
  • Built in 1910
  • MLS: 25623393
Brad Keyes

Brad Keyes

+13103673372

brad@keyesla.com

License #: 01912382

Josh Stein-Sapir

Josh Stein-Sapir

+14244016165

josh@keyesla.com

License #: 01979910